Appartement 4 pièces 89 m²
Ce bien vous intéresse ?Nous contacter
998 €
par mois
charges comprises*
Ref. 03456789
- Toulouse / La Fourguette
- 89 m²
- 4 pièces
- Neuf
Caractéristiques du bien
- 3 chambres
- 2ème etage
Type de chauffage :
individuel
Dépôt de garantie :
894 €
* Provision avec régularisation annuelle, location sans honoraires de location, hors stationnement
Ce bien vous intéresse ?Nous contacter
VÉRIFIEZ VOTRE ÉLIGIBILITÉ !
AVANT DE NOUS CONTACTER :
- Assurez-vous d'avoir fait votre demande départementale de logement social et d'avoir un numéro unique.
- Vérifiez à quel type de logement (PLAI, PLUS, PLS, LLI) vous êtes éligible en comparant vos revenus aux plafonds de ressources.
Pour vous donner un ordre d'idée :
- Pour un logement PLS, les revenus totaux de votre foyer doivent représenter environ 3 fois le montant du loyer.
- Pour un logement PLUS, ils doivent correspondre à environ 2 fois le loyer.
- Les logements PLAI s'adressent aux foyers aux ressources les plus modestes.
- Les logements étudiants sont destinés aux étudiants et aux jeunes actifs.
VÉRIFIER MON ÉLIGIBILITÉ
?>
N'hésitez pas à nous consulter pour vérifier les conditions d'éligibilité (conditions de ressources)
Description
À louer : T4 Rez-de-chaussée – Le 160 – Logement unique en RDC – Parking inclusAdresse : rue Mathieu Berdoulat, Apt B001, 31100 Toulouse.
Bailleur : Toulouse Métropole Habitat.
Disponible Immédiatement
Un logement lumineux, spacieux et fonctionnel — idéal pour une famille.
Découvrez ce T4 en rez-de-chaussée situé au sein de la nouvelle résidence Le 160. Il s'agit du seul T4 de la résidence, en plain-pied, offrant confort et accessibilité adaptable.
LE LOGEMENT
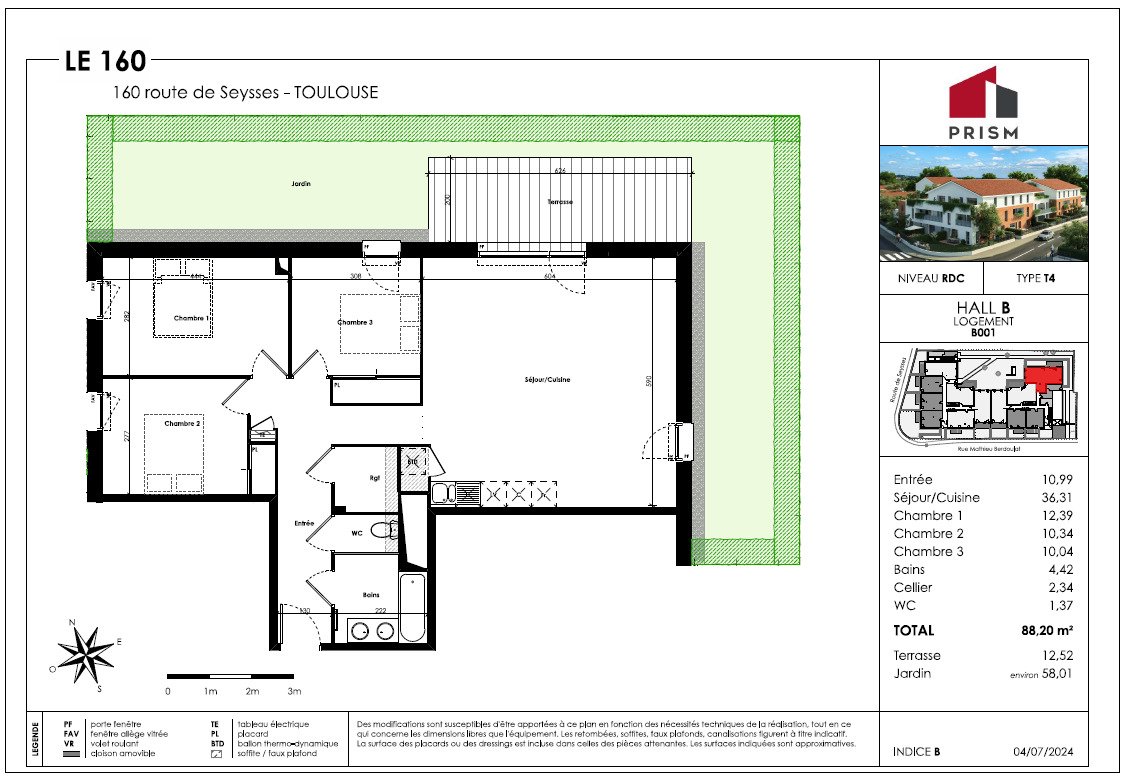
Type : T4 (3 chambres) — Surface habitable : 88,20 m².
Étage : Rez-de-chaussée.
Agencement : pièce de vie généreuse avec cuisine ouverte, trois chambres, salle de bains, salle d'eau, WC séparés (voir plan pour répartition et surfaces détaillées).
Parking inclus.
LOYER & CHARGES
Loyer mensuel : 894,56 €.
Charges mensuelles : 103,48 €.
Total mensuel (loyer + charges) : 998,04 €.
Dépôt de garantie : 894,56 €.
CARACTÉRISTIQUES
Neuf – première location (logement neuf).
Rez-de-chaussée — adaptable senior (non accessible fauteuil roulant).
Zone APL 2 – éligible aux aides au logement.
DPE / GES : en cours de réalisation.
AVANTAGES
Logement unique T4 en RDC dans la résidence — pas d'équivalent dans l'immeuble.
Volume et agencement optimisés pour la vie de famille.
Parking inclus et situation neuve, livraison fin janvier — prêt pour emménager en début d'année.
PAS DE FRAIS D'AGENCE
LOCALISATION & ENVIRONNEMENT
Résidence Le 160, à Toulouse — emplacement pratique, proche commerces et transports, connexion aisée aux axes vers le centre-ville.
CONTACT & CANDIDATURE
Logement géré par Toulouse Métropole Habitat. Pour postuler ou obtenir davantage d'informations (plan détaillé du logement, orientation, type de chauffage, photos), écrivez-nous : nous vous transmettrons le lien pour déposer votre dossier de candidature.
Commodités















