Voir plus de critères

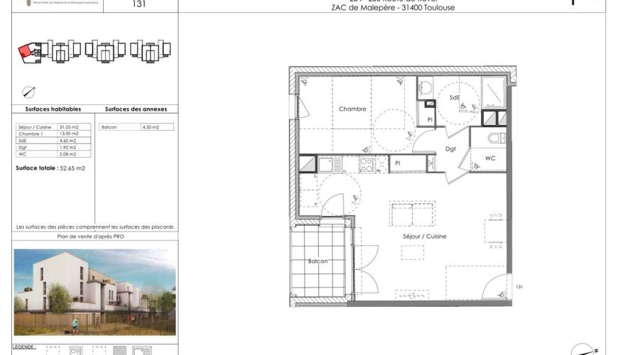
0622-CATALA-CN Appartement 2 pièces 52.65 m²

Ce bien vous intéresse ?Nous contacter
168 000 €
Ref. 00000622010131
  • TOULOUSE / Montaudran-Lespinet
  • 52.65 m²
  • 2 pièces
  • Neuf
Ce bien vous intéresse ?
Service accession
05 67 69 67 79
Pour plus d'information sur ce bien, prenez contact avec une agence
Nous contacter
Des conseils
pour votre projet
En savoir plus
Copropriété : 0622 - CATALA - CN
Logement dans la copropriété : 50
Description
Située au cœur de Faubourg Malepère, quartier récent et attractif à 10min de l'accès au périphérique dans une résidence de 50 logements, nous vous proposons en location accession* ce grand appartement T2 de 53m2 environ au troisième étage composé d'un séjour /cuisine de 31m² environ.
1 place de parking sécurisée.
RT 2012, chauffage gaz.
*Dispositif soumis à conditions de ressources
Résidence principale - Tva 5,5% - Exonération de la Taxe Foncière pendant 15 ans – Prêt à Taux Zéro - Frais de notaire réduits
Commodités
Retour à la liste