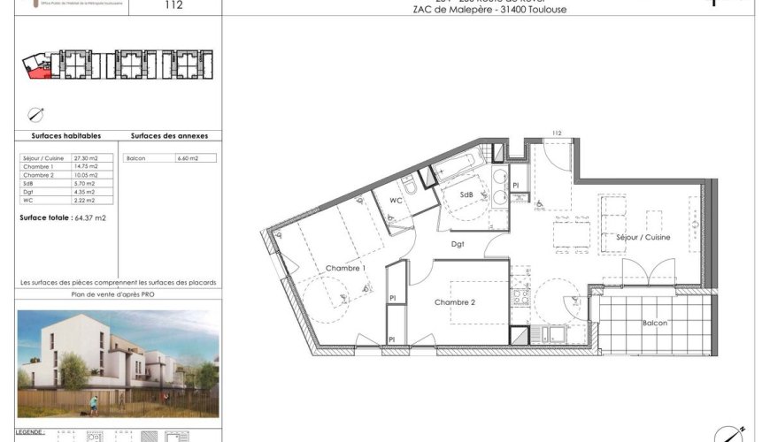
0622-CATALA-CN Appartement 3 pièces 64.37 m²
Ce bien vous intéresse ?Nous contacter
200 000 €
Ref. 00000622010112
- TOULOUSE / Montaudran-Lespinet
- 64.37 m²
- 3 pièces
- Neuf
Ce bien vous intéresse ?
Service accession
05 67 69 67 79
Pour plus d'information sur ce bien, prenez contact avec une agence
Nous contacter
?>
Copropriété : 0622 - CATALA - CN
Logement dans la copropriété : 50
Description
Située au cœur de Faubourg Malepère, quartier récent et attractif à 10min de l'accès au périphérique dans une résidence de 50 logements, nous vous proposons en location accession* cet appartement T3 de 64m2 environ avec terrasse.1 place de parking sécurisée.
RT 2012, chauffage gaz.
*Dispositif soumis à conditions de ressources
Résidence principale - Tva 5,5% - Exonération de la Taxe Foncière pendant 15 ans – Prêt à Taux Zéro - Frais de notaire réduits
Commodités




