Voir plus de critères

0622-CATALA-CN Appartement 4 pièces 73.12 m²

Ce bien vous intéresse ?Nous contacter
236 000 €
Ref. 00000622060623
  • TOULOUSE / Montaudran-Lespinet
  • 73.12 m²
  • 4 pièces
  • Neuf
Caractéristiques du bien
  • 3 chambres
Ce bien vous intéresse ?
Service accession
05 67 69 67 79
Pour plus d'information sur ce bien, prenez contact avec une agence
Nous contacter
Des conseils
pour votre projet
En savoir plus
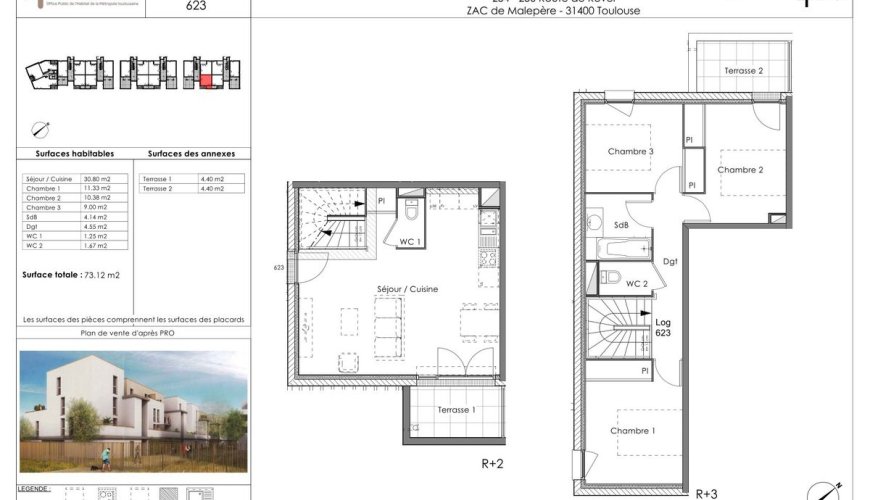
Copropriété : 0622 - CATALA - CN
Logement dans la copropriété : 50
Description
Située au cœur de Faubourg Malepère, quartier récent et attractif à 10min de l'accès au périphérique dans une résidence de 50 logements, nous vous proposons en location accession* cet appartement T4 DUPLEX de 73m² environ comprenant 1 séjour/cuisine de 30m² environ, 3 chambres avec placards aménagés, 2WC.
1 place de parking sécurisée.
RT 2012, chauffage gaz.
*Dispositif soumis à conditions de ressources
Résidence principale - Tva 5,5% - Exonération de la Taxe Foncière pendant 15 ans – Prêt à Taux Zéro - Frais de notaire réduits
Commodités
Retour à la liste