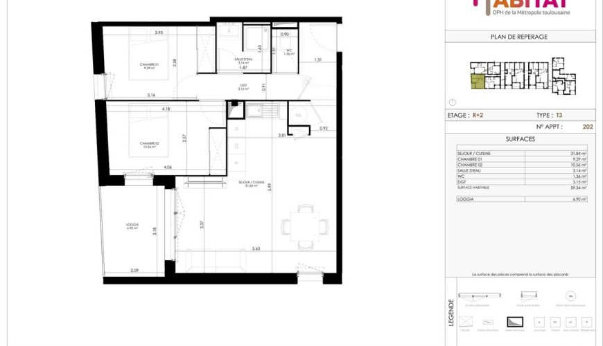
Appartement 3 pièces 59.34 m²
Ce bien vous intéresse ?Nous contacter
163 000 €
Ref. 00000712010202
- TOULOUSE / Les Izards
- 59.34 m²
- 3 pièces
- Neuf
Caractéristiques du bien
- 2 chambres
- Stationnement, box
Type de chauffage :
individuel
Ce bien vous intéresse ?
Service accession
05 67 69 67 79
Pour plus d'information sur ce bien, prenez contact avec une agence
Nous contacter
?>
Description
Situé à Toulouse, secteur Trois cocus, nous vous proposons en location-accession* cet appartement de 3 pièces au deuxième et dernier étage sans ascenseur. Il est composé d'un bel espace de vie séjour/cuisine de 31 m², 2 chambres équipées de placards ainsi qu'un garage en sous-sol.RE2020, chauffage PAC, Résidence principale - Tva 5,5% - Exonération de la Taxe Foncière pendant 15 ans – Prêt à Taux Zéro - Frais de notaire réduits - Pas de frais d'agence
Commodités



