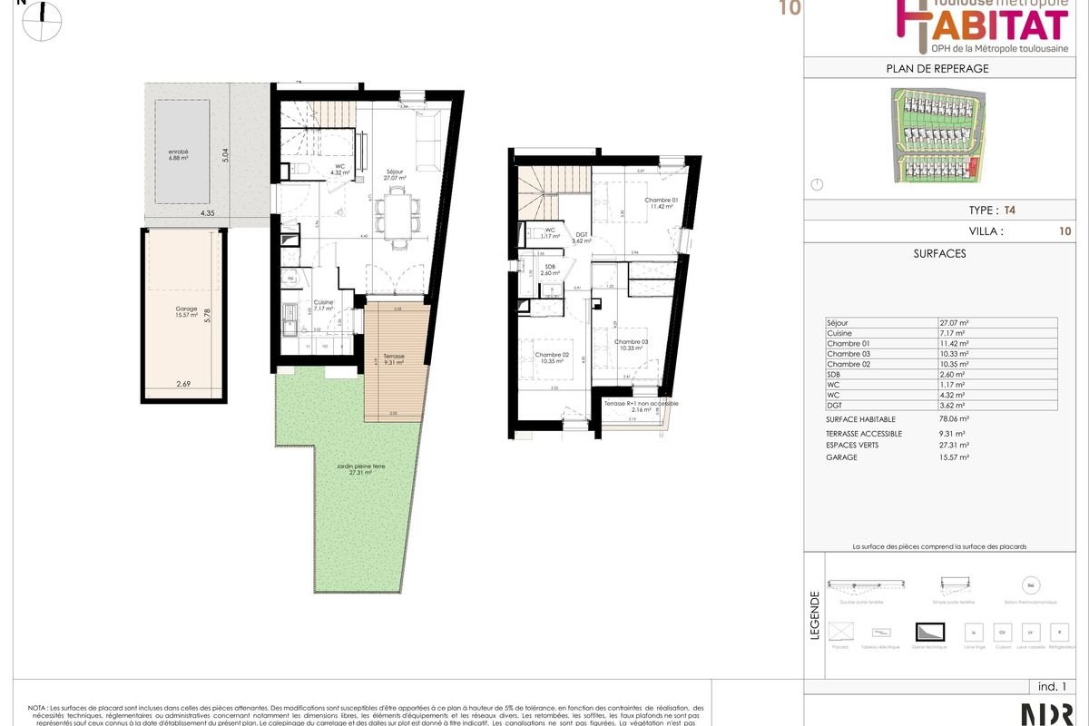
Maison 4 pièces 78.06 m²
Ce bien vous intéresse ?Nous contacter
227 000 €
Ref. 00000712500010
- TOULOUSE / Les Izards
- 78.06 m²
- 4 pièces
- Neuf
Caractéristiques du bien
- 3 chambres
Type de chauffage :
individuel
Ce bien vous intéresse ?
Service accession
05 67 69 67 79
Pour plus d'information sur ce bien, prenez contact avec une agence
Nous contacter
?>
Description
Située à Toulouse, secteur Trois cocus, nous vous proposons en location-accession* cette maison T4 en duplex de 78m²mitoyenne d'un côté. Elle comprend un séjour de 27 m² environ avec une cuisine fermée, 3 chambres à l'étage équipées de placard, 2 wc.Terrasse, jardin de 27m², cellier, garage et place du midi.
RE2020, Chauffage PAC , Résidence principale - Tva 5,5% - Exonération de la Taxe Foncière pendant 15 ans – Prêt à Taux Zéro - Frais de notaire réduits - Pas de frais d'agence
Commodités



