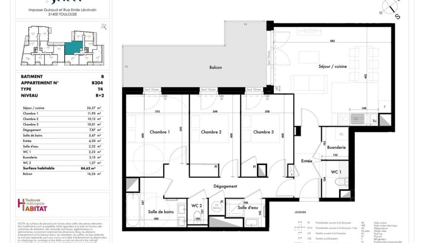
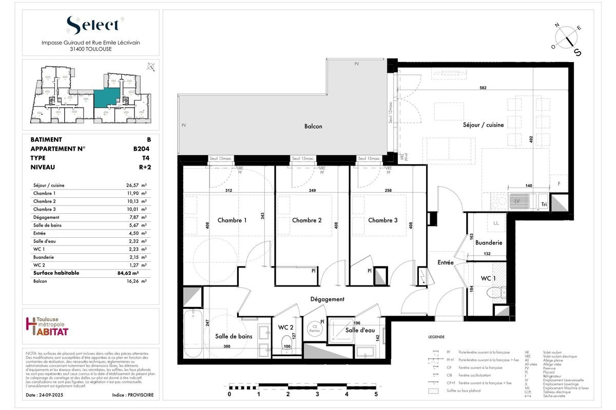
Appartement 4 pièces 84.62 m²
Ce bien vous intéresse ?Nous contacter
290 000 €
Ref. 00000717020204
- TOULOUSE / Montaudran-Lespinet
- 84.62 m²
- 4 pièces
- Neuf
Caractéristiques du bien
- 2ème etage
- Ascenseur
- Stationnement, box
Type de chauffage :
individuel
Ce bien vous intéresse ?
Service accession
05 67 69 67 79
Pour plus d'information sur ce bien, prenez contact avec une agence
Nous contacter
?>
Description
Situé à Toulouse secteur Ormeau-Montaudran, nous vous proposons en location-accession* cet appartement de 4 pièces de 84m² au deuxième étage avec ascenseur. Il bénéficie d'une salle de bains et d'une salle d'eau , 2WC , une buanderie ainsi que d'une place de stationnement en sous-sol.RE2020, Résidence principale - Tva 5,5% - Exonération de la Taxe Foncière pendant 15 ans – Prêt à Taux Zéro - Frais de notaire réduits - Pas de frais d'agence
Commodités




