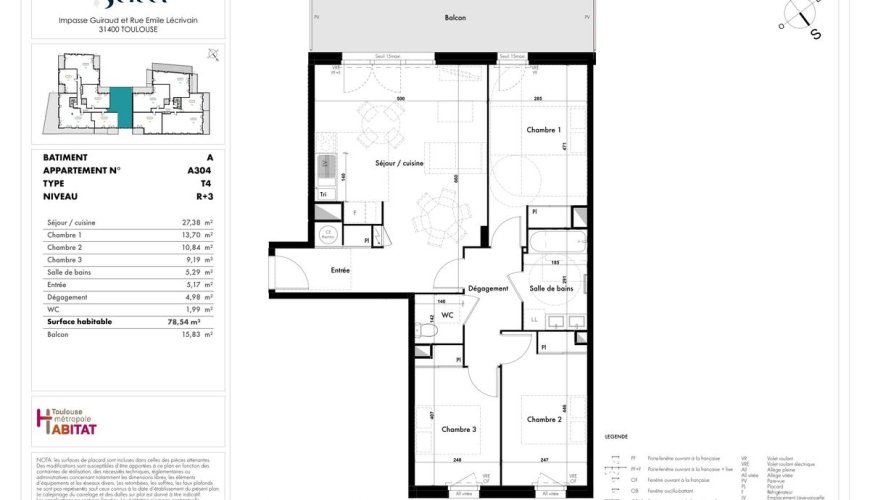
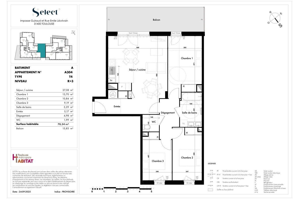
Appartement 4 pièces 78.54 m²
Ce bien vous intéresse ?Nous contacter
273 000 €
Ref. 00000717010304
- TOULOUSE / Montaudran-Lespinet
- 78.54 m²
- 4 pièces
- Neuf
Caractéristiques du bien
- 3ème etage
- Ascenseur
- Stationnement, box
Type de chauffage :
individuel
Ce bien vous intéresse ?
Service accession
05 67 69 67 79
Pour plus d'information sur ce bien, prenez contact avec une agence
Nous contacter
?>
Description
Situé à Toulouse secteur Ormeau-Montaudran, nous vous proposons en location-accession* cet appartement de 4 pièces de 78m² au troisième et dernier étage avec balcon de 15m² et une place de stationnement en sous-sol.RE2020, Résidence principale - Tva 5,5% - Exonération de la Taxe Foncière pendant 15 ans – Prêt à Taux Zéro - Frais de notaire réduits - Pas de frais d'agence
Commodités




