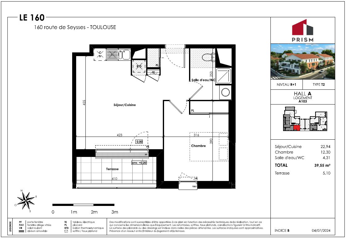
Appartement 2 pièces 46 m²
Ce bien vous intéresse ?Nous contacter
742 €
par mois
charges comprises*
Ref. 05644568
- Toulouse / La Fourguette
- 46 m²
- 2 pièces
- Neuf
Caractéristiques du bien
- 1 chambre
- 2ème etage
- Stationnement, box
Type de chauffage :
individuel
* Provision avec régularisation annuelle, location sans honoraires de location, hors stationnement
Ce bien vous intéresse ?Nous contacter
VÉRIFIEZ VOTRE ÉLIGIBILITÉ !
AVANT DE NOUS CONTACTER :
- Assurez-vous d'avoir fait votre demande départementale de logement social et d'avoir un numéro unique.
- Vérifiez à quel type de logement (PLAI, PLUS, PLS, LLI) vous êtes éligible en comparant vos revenus aux plafonds de ressources.
Pour vous donner un ordre d'idée :
- Pour un logement PLS, les revenus totaux de votre foyer doivent représenter environ 3 fois le montant du loyer.
- Pour un logement PLUS, ils doivent correspondre à environ 2 fois le loyer.
VÉRIFIER MON ÉLIGIBILITÉ
?>
N'hésitez pas à nous consulter pour vérifier les conditions d'éligibilité (conditions de ressources)
Description
À louer : T2 neuf – Le 160 – Plusieurs T2 disponibles à tous les étages – Livraison fin janvier – Parking inclusCertains logements sont adaptés aux personnes à mobilité réduite.
Adresse : rue Mathieu Berdoulat, 31100 Toulouse.
Bailleur : Toulouse Métropole Habitat.
Livraison / Disponible : logements disponibles à partir du 26 janvier 2026
Un logement sain, confortable et adapté au quotidien
Intégrez la nouvelle résidence Le 160 : des appartements T2 neufs, pensés pour offrir confort et fonctionnalité. Plusieurs T2 seront proposés à tous les étages - idéal pour une personne seule ou un couple souhaitant s'installer rapidement à Toulouse. (Plan et surfaces détaillées disponibles sur demandes).
LE LOGEMENT
Type : T2 (1 chambre) — Surface habitable : 46 m².
Étage : 1er étage (immeuble R+2).
Agencement fonctionnel : séjour, cuisine, 1 chambres, salle de bains ou salle d'eau, WC.
Parking inclus.
LOYER & CHARGES
Loyer mensuel : 683,90 €.
Charges mensuelles : 58,91 €.
Total mensuel (loyer + charges) : 742,95 €.
Dépôt de garantie : 720,34 €.
CARACTÉRISTIQUES
Neuf – première location .
Ascenseur : Oui — Accessibilité fauteuil roulant : Oui.
Zone APL 2 – éligible aux aides logement.
DPE / GES : en cours.
AVANTAGES
Logements neufs dans une résidence contemporaine et bien située.
Plusieurs T2 disponibles à tous les étages — opportunité de choix selon exposition et étage.
Parking inclus et conception optimisée pour la vie de tous les jours.
PAS DE FRAIS D'AGENCE.
LOCALISATION & ENVIRONNEMENT
Résidence Le 160, située rue Mathieu Berdoulat — accès facile aux commerces, services et transports vers Toulouse. Livraison fin janvier : idéal pour emménager début d'année.
CONTACT & CANDIDATURE
Logements gérés par Toulouse Métropole Habitat. Pour candidater ou demander des informations complémentaires (plans détaillés par lot, photos supplémentaire, orientation, type de chauffage), écrivez-nous : nous vous enverrons le lien pour déposer votre dossier de candidature. Les candidatures seront traitées à partir du 5 janvier.
Commodités








