Voir plus de critères

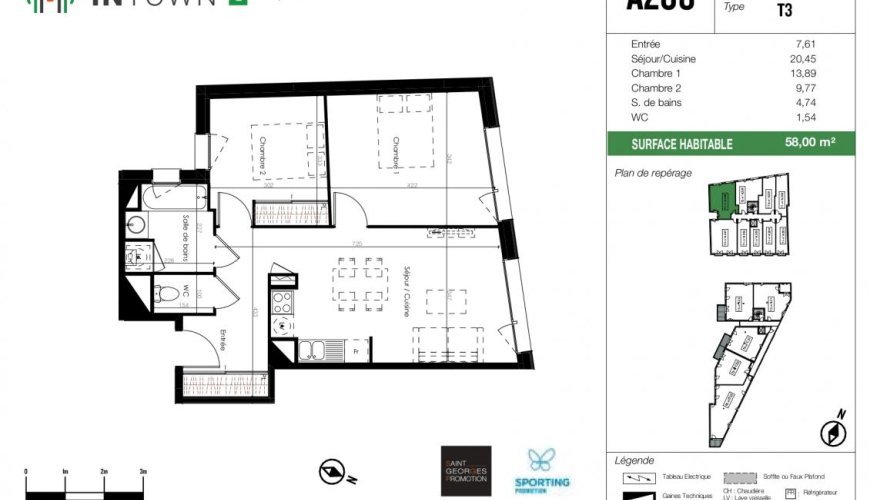
Appartement 3 pièces 58 m²

Ce bien vous intéresse ?Nous contacter
591 €
par mois
charges comprises*
Ref. 01020592010208
  • TOULOUSE / Guilhemery
  • 58 m²
  • 3 pièces
  • Ancien
Disponible à partir du 29/10/2025
Caractéristiques du bien
  • 2ème etage
Type de chauffage :
collectif
Dépôt de garantie :
590 €
* Provision avec régularisation annuelle, location sans honoraires de location, hors stationnement
Ce bien vous intéresse ?Nous contacter
N'hésitez pas à nous consulter pour vérifier les conditions d'éligibilité (conditions de ressources)
Copropriété :
Logement dans la copropriété : 17
Description
A louer, Appartement de 3 pièces de 58m2 avec ascenseur, dans une résidence très récente côté Port St Sauveur. Transports, commerces et services à proximité immédiate. 2ième étage.
Conditions : Logement soumis aux plafonds PLS. Être inscrit sur demandedelogement31.
Commodités
Retour à la liste