Voir plus de critères

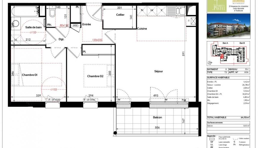
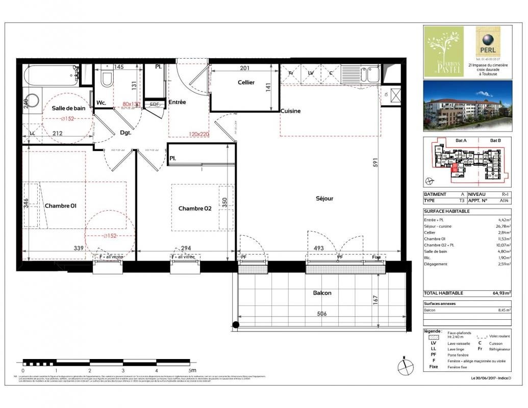
Appartement 3 pièces 64.93 m²

Ce bien vous intéresse ?Nous contacter
734 €
par mois
charges comprises*
Ref. 01020534010114
  • TOULOUSE / Croix-Daurade
  • 64.93 m²
  • 3 pièces
  • Ancien
Disponible immédiatement
Caractéristiques du bien
  • 1er etage
  • Stationnement à proximité
Type de chauffage :
collectif
Dépôt de garantie :
632 €
* Provision avec régularisation annuelle, location sans honoraires de location, hors stationnement
Ce bien vous intéresse ?Nous contacter
T3 CROIX DAURADE
T3 CROIX DAURADE
N'hésitez pas à nous consulter pour vérifier les conditions d'éligibilité (conditions de ressources)
Copropriété :
Logement dans la copropriété : 32
Description
A louer, Appartement de 3 pièces de 64m2 avec ascenseur dans une résidence récente. A proximité des écoles, transports et rocade.
Conditions : logement soumis aux plafonds PLS. Être inscrit sur demandedelogement31.
Commodités
Retour à la liste