Voir plus de critères

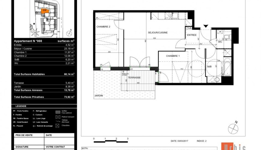
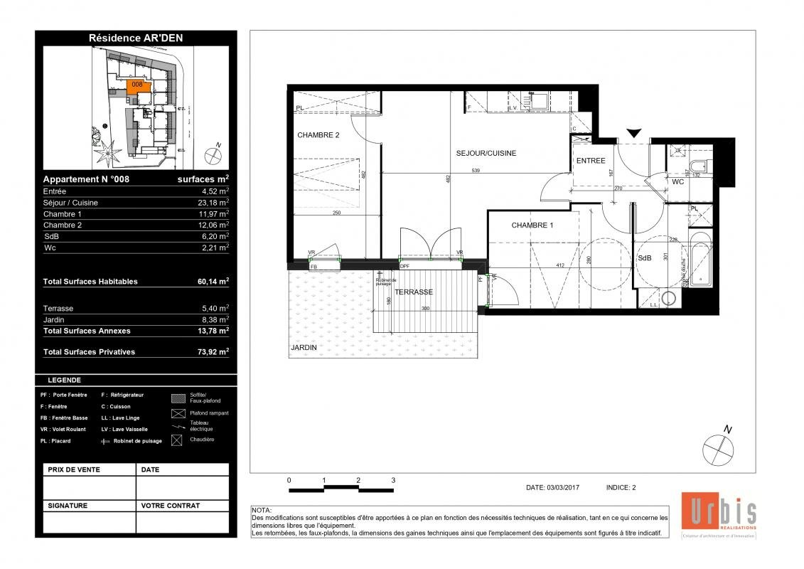
Appartement 3 pièces 60.14 m²

Ce bien vous intéresse ?Nous contacter
543 €
par mois
charges comprises*
Ref. 01010533010008
  • TOULOUSE / Lardenne
  • 60.14 m²
  • 3 pièces
  • Ancien
Disponible immédiatement
Caractéristiques du bien
  • Stationnement à proximité
  • Extérieur
Type de chauffage :
collectif
Dépôt de garantie :
543 €
* Provision avec régularisation annuelle, location sans honoraires de location, hors stationnement
Ce bien vous intéresse ?Nous contacter
N'hésitez pas à nous consulter pour vérifier les conditions d'éligibilité (conditions de ressources)
Copropriété :
Logement dans la copropriété : 9
Description
A louer, Appartement de 3 pièces de 60m2 en rez-de-chaussée disposant d'un jardin.
Résidence récente.
Conditions : logement soumis aux plafonds PLS, être inscrit sur demandedelogement31.
Commodités
Retour à la liste