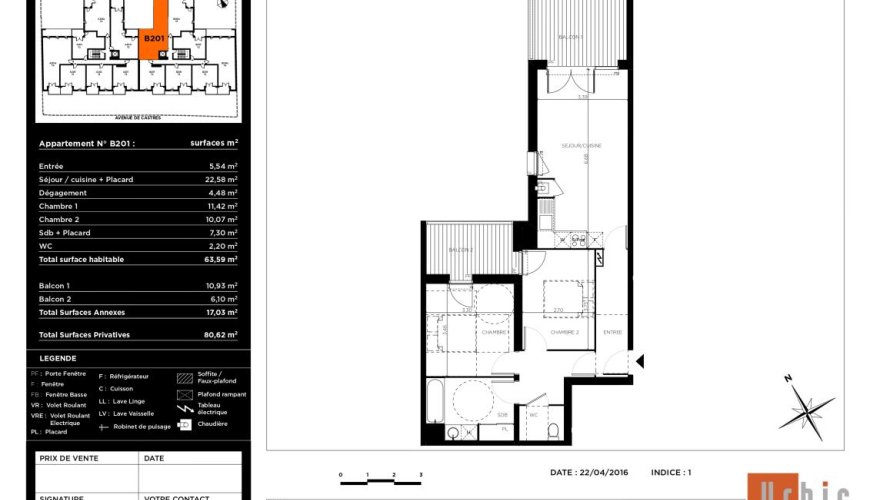
Appartement 3 pièces 63.59 m²
Ce bien vous intéresse ?Nous contacter
660 €
par mois
charges comprises*
Ref. 01020532020201
- TOULOUSE / Château-de-l'Hers
- 63.59 m²
- 3 pièces
- Ancien
Disponible à partir du 03/12/2025
Caractéristiques du bien
- 1er etage
- Stationnement à proximité
Type de chauffage :
individuel
Dépôt de garantie :
659 €
* Provision avec régularisation annuelle, location sans honoraires de location, hors stationnement
Ce bien vous intéresse ?Nous contacter
?>
N'hésitez pas à nous consulter pour vérifier les conditions d'éligibilité (conditions de ressources)
Copropriété :
Logement dans la copropriété : 12
Description
A louer, Appartement de 3 pièces de 63m2 avec ascenseur. 2ième étage d'une résidence récente (2018). A proximité du réseau de bus, accès rapide à la rocade.Conditions : Logement soumis aux plafonds PLS. Être inscrit sur demandedelogement31.
Commodités










