Voir plus de critères

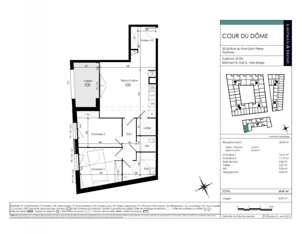
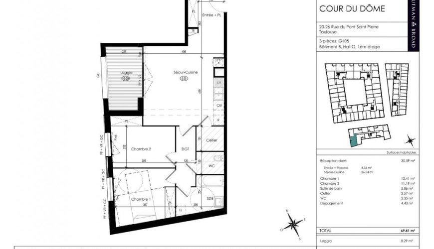
Appartement 3 pièces 69.41 m²

Ce bien vous intéresse ?Nous contacter
718 €
par mois
charges comprises*
Ref. 01010654020105
  • TOULOUSE / Saint-Cyprien
  • 69.41 m²
  • 3 pièces
  • Ancien
Disponible à partir du 15/10/2025
Caractéristiques du bien
  • 1er etage
  • Stationnement à proximité
Type de chauffage :
collectif
Dépôt de garantie :
718 €
* Provision avec régularisation annuelle, location sans honoraires de location, hors stationnement
Ce bien vous intéresse ?Nous contacter
T3 St Cyprien
T3 St Cyprien
N'hésitez pas à nous consulter pour vérifier les conditions d'éligibilité (conditions de ressources)
Copropriété :
Logement dans la copropriété : 42
Description
A louer. T3 en plein cœur du quartier St Cyprien dans une résidence de 2024. Proximité immédiate des transports, commerces et services.
Conditions : Logement soumis aux plafonds PLS. Être inscrit sur demandedelogement31.
Commodités
Retour à la liste