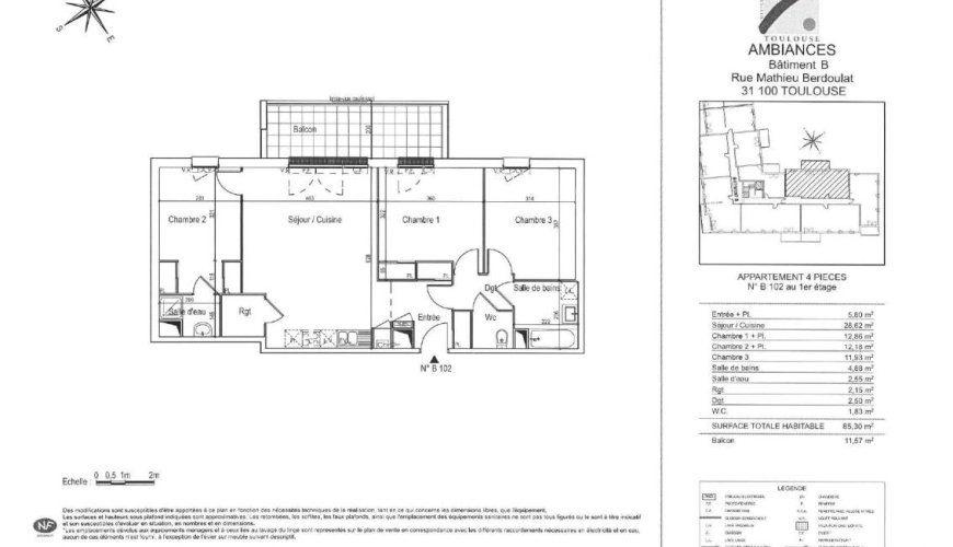
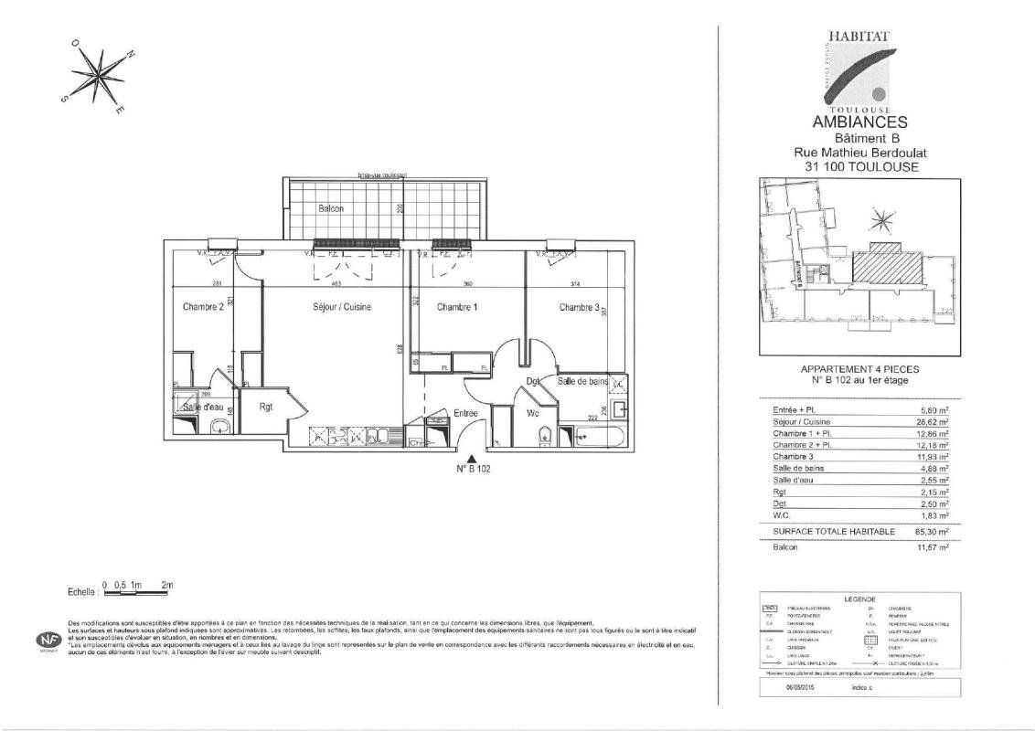
Appartement 4 pièces 85.3 m²
Ce bien vous intéresse ?Nous contacter
874 €
par mois
charges comprises*
Ref. 01010440020102
- TOULOUSE / La Fourguette
- 85.3 m²
- 4 pièces
- Ancien
Disponible à partir du 17/01/2026
Caractéristiques du bien
- 1er etage
- Ascenseur
- Stationnement à proximité
Type de chauffage :
individuel
Dépôt de garantie :
787 €
* Provision avec régularisation annuelle, location sans honoraires de location, hors stationnement
Ce bien vous intéresse ?Nous contacter
VÉRIFIEZ VOTRE ÉLIGIBILITÉ !
AVANT DE NOUS CONTACTER :
- Assurez-vous d'avoir fait votre demande départementale de logement social et d'avoir un numéro unique.
- Vérifiez à quel type de logement (PLAI, PLUS, PLS, LLI) vous êtes éligible en comparant vos revenus aux plafonds de ressources.
Pour vous donner un ordre d'idée :
- Pour un logement PLS, les revenus totaux de votre foyer doivent représenter environ 3 fois le montant du loyer.
- Pour un logement PLUS, ils doivent correspondre à environ 2 fois le loyer.
VÉRIFIER MON ÉLIGIBILITÉ
?>
N'hésitez pas à nous consulter pour vérifier les conditions d'éligibilité (conditions de ressources)
Copropriété :
Logement dans la copropriété : 73
Description
A louer, Appartement de 4 pièces de 85m2 avec ascenseur. Secteur Lafourguette. Proximité commerces, lignes de bus. Accès rapide à la Rocade.Conditions : Logement soumis aux plafonds PLS. Être inscrit sur demandedelogement31.
Commodités




