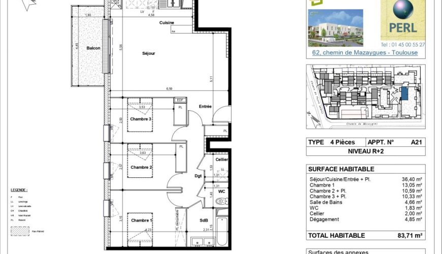
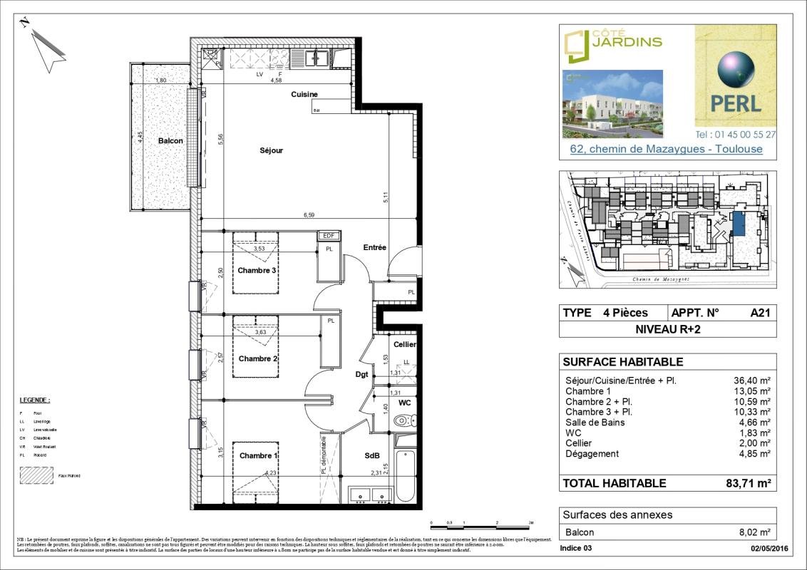
Appartement 4 pièces 83.71 m²
Ce bien vous intéresse ?Nous contacter
787 €
par mois
charges comprises*
Ref. 01010469011021
- TOULOUSE / Lardenne
- 83.71 m²
- 4 pièces
- Ancien
Disponible à partir du 16/03/2026
Caractéristiques du bien
- 3 chambres
- 2ème etage
- Ascenseur
- Stationnement à proximité
Type de chauffage :
individuel
Dépôt de garantie :
787 €
* Provision avec régularisation annuelle, location sans honoraires de location, hors stationnement
Ce bien vous intéresse ?Nous contacter
VÉRIFIEZ VOTRE ÉLIGIBILITÉ !
AVANT DE NOUS CONTACTER :
- Assurez-vous d'avoir fait votre demande départementale de logement social et d'avoir un numéro unique.
- Vérifiez à quel type de logement (PLAI, PLUS, PLS, LLI) vous êtes éligible en comparant vos revenus aux plafonds de ressources.
Pour vous donner un ordre d'idée :
- Pour un logement PLS, les revenus totaux de votre foyer doivent représenter environ 3 fois le montant du loyer.
- Pour un logement PLUS, ils doivent correspondre à environ 2 fois le loyer.
- Les logements PLAI s'adressent aux foyers aux ressources les plus modestes.
- Les logements étudiants sont destinés aux étudiants et aux jeunes actifs.
?>
N'hésitez pas à nous consulter pour vérifier les conditions d'éligibilité (conditions de ressources)
Copropriété :
Logement dans la copropriété : 21
Description
A louer, Appartement de 4 pièces de 83m2 au 2ième étage avec ascenseur, dans une très belle résidence de 2017. Ecoles, bus (la L3 vous amène directement aux Arènes où vous trouverez la ligne A du métro et le tramway), accès à la Rocade, services de proximité et commerces.Le logement est composé de 3 chambres, d'un grand séjour avec cuisine ouverte, et d'une terrasse de 8 m².
L'eau froide est comprise dans les charges.
Conditions : Logement soumis aux plafonds PLS. Être inscrit sur demandedelogement31.
Commodités




