Appartement 4 pièces 84.6 m²
Ce bien vous intéresse ?Nous contacter
1 099 €
par mois
charges comprises*
Ref. 525236525
- TOULOUSE / Château-de-l'Hers
- 84.6 m²
- 4 pièces
- Neuf
Caractéristiques du bien
- 3 chambres
* Provision avec régularisation annuelle, location sans honoraires de location, hors stationnement
Ce bien vous intéresse ?Nous contacter
VÉRIFIEZ VOTRE ÉLIGIBILITÉ !
AVANT DE NOUS CONTACTER :
- Assurez-vous d'avoir fait votre demande départementale de logement social et d'avoir un numéro unique.
- Vérifiez à quel type de logement (PLAI, PLUS, PLS, LLI) vous êtes éligible en comparant vos revenus aux plafonds de ressources.
Pour vous donner un ordre d'idée :
- Pour un logement PLS, les revenus totaux de votre foyer doivent représenter environ 3 fois le montant du loyer.
- Pour un logement PLUS, ils doivent correspondre à environ 2 fois le loyer.
- Les logements PLAI s'adressent aux foyers aux ressources les plus modestes.
- Les logements étudiants sont destinés aux étudiants et aux jeunes actifs.
VÉRIFIER MON ÉLIGIBILITÉ
?>
N'hésitez pas à nous consulter pour vérifier les conditions d'éligibilité (conditions de ressources)
Description
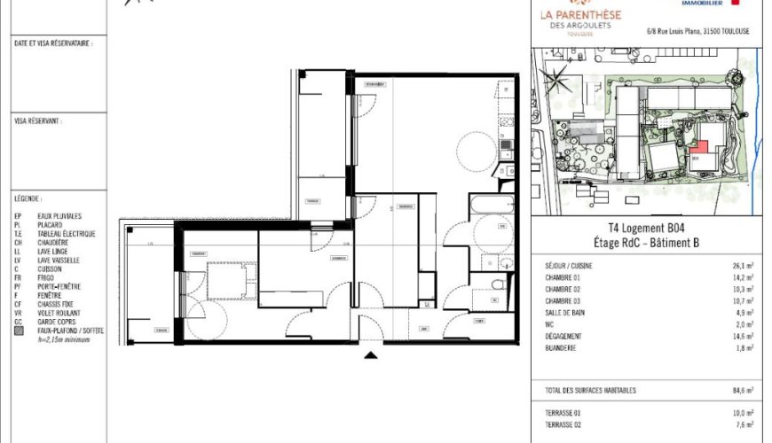
À louer : DernierT4 Neuf au sein de la résidence LA PARENTHÈSE DES ARGOULETSBailleur : Toulouse Métropole Habitat
Disponible à partir du : 18/11/2025
DESCRIPTION COURTE :
Un logement neuf, confortable et fonctionnel
Découvrez ces T4 neuf, lumineux et bien agencé, situé dans la résidence La Parenthèse des Argoulets. Idéal pour une famille recherchant un appartement moderne, économique, proche de tous les commodités et disponible en première mise en location.
Le logement comprend :
* Un séjour avec cuisine ouverte
* Trois chambres séparées
* Une salle de bain
* Placards intégrés
LOYER & CHARGES :
Loyer mensuel : 941.79 €
Charges : 157,91 € (dont 46,00 € de provision eau froide)
Total mensuel : 1099,70€
Dépôt de garantie : 1099,70 €
Caractéristiques :
* Neuf – première location
* immeuble R+2
* Surface habitable : 84,60 m²
* Ascenseur
* Place de parking
* Fauteuil roulant : Non
* Financement : Logement Locatif Intermédiaire (LLI)
* Zone APL : Zone 2 (éligible aux aides au logement)
* DPE / GES : en cours
AVANTAGES :
* Logement neuf en première occupation
* Résidence récente dans un quartier résidentiel
* Éligible aux aides (Zone APL 2)
* PAS DE FRAIS D'AGENCE
LOCALISATION & ENVIRONNEMENT :
Résidence La Parenthèse des Argoulets — secteur des Argoulets, Toulouse. Proche des commerces de quartier et des transports en commun.
CONDITIONS & VISITES :
Visites organisées sur rendez-vous.
Dossier de candidature dématérialisé demandé (lien transmis après premier contact). Dossier complet requis pour études et visites.
CONTACT & CANDIDATURE :
Logement géré par Toulouse Métropole Habitat
Pour candidater ou demander une visite, merci d'envoyer votre demande en indiquant : nom, téléphone, e-mail. Le lien pour déposer votre dossier vous sera transmis par la suite.
Commodités







