Voir plus de critères

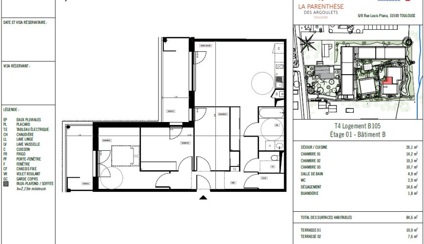
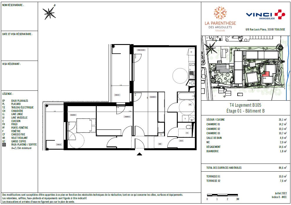
Appartement 4 pièces 84.6 m²

Ce bien vous intéresse ?Nous contacter
1 099 €
par mois
charges comprises*
Ref. 548154794
  • Toulouse / Juncasse-Argoulets
  • 84.6 m²
  • 4 pièces
  • Neuf
Caractéristiques du bien
  • 3 chambres
  • 2ème etage
  • Terrasse
* Provision avec régularisation annuelle, location sans honoraires de location, hors stationnement
Ce bien vous intéresse ?Nous contacter
N'hésitez pas à nous consulter pour vérifier les conditions d'éligibilité (conditions de ressources)
Description
À louer : Plusieurs T2 Neuf au seins de la résidence LA PARENTHÈSE DES ARGOULETS

Bailleur : Toulouse Métropole Habitat

Disponible à partir du : 18/11/2025

DESCRIPTION COURTE :

Un logement neuf, confortable et fonctionnel

Découvrez ces T4 neuf, lumineux et bien agencé, situé dans la résidence La Parenthèse des Argoulets. Idéal pour une famille recherchant un appartement moderne, économique, proche de tous les commodités et disponible en première mise en location.

Le logement comprend :

* Un séjour avec cuisine ouverte
* Trois chambre séparée
* Une salle de bain
* Placards intégrés

LOYER & CHARGES :

Loyer mensuel : 941,79 €

Charges : 157,91 € (dont 46,00 € de provision eau froide)

Total mensuel : 1099,70€

Dépôt de garantie : 1099,70 €

Caractéristiques :

* Neuf – première location
* immeuble R+2
* Surface habitable : 84,60 m²
* Ascenseur
* Fauteuil roulant : Non
* Financement : Logement Locatif Intermédiaire (LLI)
* Zone APL : Zone 2 (éligible aux aides au logement)
* DPE / GES : en cours

AVANTAGES :

* Logement neuf en première occupation
* Résidence récente dans un quartier résidentiel
* Éligible aux aides (Zone APL 2)
* PAS DE FRAIS D'AGENCE

LOCALISATION & ENVIRONNEMENT :

Résidence La Parenthèse des Argoulets — secteur des Argoulets, Toulouse. Proche des commerces de quartier et des transports en commun.

CONDITIONS & VISITES :

Visites organisées sur rendez-vous.

Dossier de candidature dématérialisé demandé (lien transmis après premier contact). Dossier complet requis pour études et visites.

CONTACT & CANDIDATURE :

Logement géré par Toulouse Métropole Habitat

Pour candidater ou demander une visite, merci d'envoyer votre demande en indiquant : nom, téléphone, e-mail. Le lien pour déposer votre dossier vous sera transmis par la suite.
Commodités
Retour à la liste