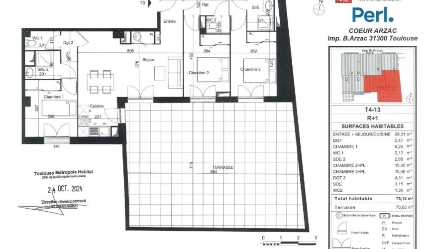
Appartement 4 pièces 75.16 m²
Ce bien vous intéresse ?Nous contacter
957 €
par mois
charges comprises*
Ref. 01010450010013
- TOULOUSE / Saint-Cyprien
- 75.16 m²
- 4 pièces
- Ancien
Disponible immédiatement
Caractéristiques du bien
- 3 chambres
- 1er etage
- Terrasse
Type de chauffage :
individuel
Dépôt de garantie :
833 €
* Provision avec régularisation annuelle, location sans honoraires de location, hors stationnement
Ce bien vous intéresse ?Nous contacter
VÉRIFIEZ VOTRE ÉLIGIBILITÉ !
AVANT DE NOUS CONTACTER :
- Assurez-vous d'avoir fait votre demande départementale de logement social et d'avoir un numéro unique.
- Vérifiez à quel type de logement (PLAI, PLUS, PLS, LLI) vous êtes éligible en comparant vos revenus aux plafonds de ressources.
Pour vous donner un ordre d'idée :
- Pour un logement PLS, les revenus totaux de votre foyer doivent représenter environ 3 fois le montant du loyer.
- Pour un logement PLUS, ils doivent correspondre à environ 2 fois le loyer.
- Les logements PLAI s'adressent aux foyers aux ressources les plus modestes.
- Les logements étudiants sont destinés aux étudiants et aux jeunes actifs.
?>
N'hésitez pas à nous consulter pour vérifier les conditions d'éligibilité (conditions de ressources)
Copropriété :
Logement dans la copropriété : 11
Description
A louer, Dans une résidence entièrement réhabilitée, T4 au cœur du quartier St Cyprien. Services, commerces et transports à proximité immédiateVous disposez de 3 chambres et de 2 salles d'eau. Un séjour/cuisine de 29 m², et une très grande terrasse de 70 m².
1er étage sans ascenseur. Pas de possibilité de parking dans la résidence.
Chauffage individuel électrique.
Conditions : Logement soumis aux plafonds PLS. Être inscrit sur demandedelogement31.
Commodités








