Voir plus de critères

Maison 4 pièces 85 m²

Ce bien vous intéresse ?Nous contacter
1 098 €
par mois
charges comprises*
Ref. 020701_500001
  • Castelmaurou
  • 85 m²
  • 4 pièces
  • Neuf
Caractéristiques du bien
  • 3 chambres
Type de chauffage :
individuel
Dépôt de garantie :
1 055 €
* Provision avec régularisation annuelle, location sans honoraires de location, hors stationnement
Ce bien vous intéresse ?Nous contacter

VÉRIFIEZ VOTRE ÉLIGIBILITÉ !
AVANT DE NOUS CONTACTER :

  • Assurez-vous d'avoir fait votre demande départementale de logement social et d'avoir un numéro unique.
  • Vérifiez à quel type de logement (PLAI, PLUS, PLS, LLI) vous êtes éligible en comparant vos revenus aux plafonds de ressources.
    Pour vous donner un ordre d'idée : 
    - Pour un logement PLS, les revenus totaux de votre foyer doivent représenter environ 3 fois le montant du loyer.
    - Pour un logement PLUS, ils doivent correspondre à environ 2 fois le loyer.

    Les logements PLAI s'adressent aux foyers aux ressources les plus modestes
    - Les logements étudiants sont destinés aux étudiants et aux jeunes actifs.

      VÉRIFIER MON ÉLIGIBILITÉ

 

N'hésitez pas à nous consulter pour vérifier les conditions d'éligibilité (conditions de ressources)
Description
À louer : Villa neuve LLI à Lapeyrouse-Fossat avec Garage – Prestations soignées et haute performance énergétique

Adresse : Lapeyrouse-Fossat
Type : Villa neuve – Logement Locatif Intermédiaire (LLI)
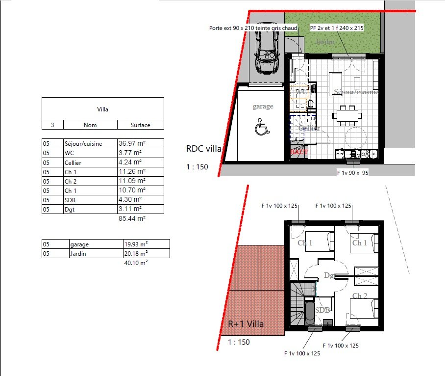
Surface habitable : 85,44 m²
Loyer mensuel : 1097,96 €
Disponible prochainement

Découvrez cette villa neuve située à Lapeyrouse-Fossat, au sein d'une opération en LLI pensée pour offrir un cadre de vie confortable, moderne et performant. Le logement bénéficie d'une conception conforme à la RE2020 -5%, gage d'exigence énergétique et de confort au quotidien.

Le logement comprend :

Une entrée fonctionnelle
Un séjour lumineux
Une cuisine équipée avec évier deux bacs, plaque de cuisson électrique, hotte et emplacement frigo
Des chambres avec rangements aménagés
Une salle de bains équipée avec baignoire et double vasque
Un WC
Un Garage
Des prestations intérieures soignées avec carrelage, faïence et peinture finie
Des menuiseries PVC double vitrage et volets roulants électriques sur les ouvertures
Un chauffage par pompe à chaleur monosplit et une production d'eau chaude par ballon thermodynamique

Loyer & Charges :
Loyer mensuel : 1055,04 €
Charges : 42,92 €
Total mensuel : 1097,96 €
Dépôt de garantie : 1055,04 €

Caractéristiques :

Villa neuve
Financement : LLI
Performance énergétique RE2020 -5%
Volets roulants électriques
Double vitrage isolant
Chauffage performant
Eau chaude thermodynamique
Placards aménagés

Les +
Logement neuf et confortable
Excellente performance énergétique
Prestations de qualité
Garage
Cadre résidentiel agréable à Lapeyrouse-Fossat
Jardin et abords soignés, avec terrains engazonnés et clôtures paysagères

Localisation & Environnement

Située à Lapeyrouse-Fossat, cette villa profite d'un environnement résidentiel calme et qualitatif, dans une opération pensée pour le confort de ses occupants et la durabilité du bâti.

Contact & Candidature

Pour toute demande d'information complémentaire ou pour déposer votre candidature, merci de nous écrire. Un lien pour constituer votre dossier vous sera transmis ensuite.
Commodités
Retour à la liste