Maison 4 pièces 85.2 m²
Ce bien vous intéresse ?Nous contacter
1 123 €
par mois
charges comprises*
Ref. 15465487
- EAUNES
- 85.2 m²
- 4 pièces
- Neuf
Disponible immédiatement
Caractéristiques du bien
- 3 chambres
- Stationnement, box
- Extérieur
- Terrasse
Type de chauffage :
individuel
* Provision avec régularisation annuelle, location sans honoraires de location, hors stationnement
Diagnostic de performance énergétique
B
B
Ce bien vous intéresse ?Nous contacter
VÉRIFIEZ VOTRE ÉLIGIBILITÉ !
AVANT DE NOUS CONTACTER :
- Assurez-vous d'avoir fait votre demande départementale de logement social et d'avoir un numéro unique.
- Vérifiez à quel type de logement (PLAI, PLUS, PLS, LLI) vous êtes éligible en comparant vos revenus aux plafonds de ressources.
Pour vous donner un ordre d'idée :
- Pour un logement PLS, les revenus totaux de votre foyer doivent représenter environ 3 fois le montant du loyer.
- Pour un logement PLUS, ils doivent correspondre à environ 2 fois le loyer.
- Les logements PLAI s'adressent aux foyers aux ressources les plus modestes.
- Les logements étudiants sont destinés aux étudiants et aux jeunes actifs.
VÉRIFIER MON ÉLIGIBILITÉ
?>
N'hésitez pas à nous consulter pour vérifier les conditions d'éligibilité (conditions de ressources)
Description
À louer : Villa T4 Duplex neuve avec terrasse et jardin – Programme Clos de Pauline – Eaunes – Parking inclusBailleur : Toulouse Métropole Habitat
Disponible immédiatement
Un logement sain, spacieux et confortable
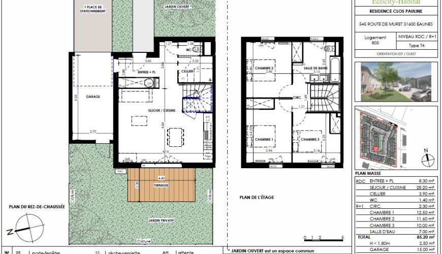
Découvrez cette superbe villa T4 en duplex située dans la nouvelle résidence Clos de Pauline à Eaunes. D'une surface habitable de 85,20 m², cette maison neuve bénéficie d'un agencement optimisé et d'espaces extérieurs privatifs, parfaits pour profiter du calme résidentiel tout en restant proche des commodités.
La villa comprend :
Un grand séjour lumineux ouvrant sur la terrasse et le jardin
Une cuisine ouverte
Trois chambres confortables à l'étage
Une salle de bain
Deux WC
Une terrasse privative
Un jardin clos
Une place de stationnement incluse
Un garage attenant
Loyer & Charges
Loyer mensuel : 1 023,15 €
Charges : 99,84 €
Total mensuel : 1 122,99 €
Dépôt de garantie : 1 023,15 €
Caractéristiques
Neuve
Duplex – idéale pour familles
Non accessible fauteuil roulant
Chauffage individuel et clim
Financement : LLI
DPE : B
GES : B
Avantages
Villa neuve avec terrasse et jardin privatif
Beaux volumes et luminosité
Quartier calme et résidentiel
Garage attenant
Zone APL 2 – Éligible aux aides au logement
PAS DE FRAIS D'AGENCE
Localisation & Environnement
Située à Eaunes, à proximité des commerces, écoles et services, la résidence Clos de Pauline offre un environnement agréable et pratique, avec un accès rapide aux axes principaux vers Toulouse.
Contact & Candidature
Ce logement est géré par Toulouse Métropole Habitat. Pour toute candidature ou demande d'information complémentaire, merci de nous écrire. Un lien pour créer votre dossier vous sera ensuite transmis.
Commodités









