Voir plus de critères

Maison 5 pièces 111.3 m²

Ce bien vous intéresse ?Nous contacter
1 345 €
par mois
charges comprises*
Ref. 1416872858
  • Daux
  • 111.3 m²
  • 5 pièces
  • Ancien
Caractéristiques du bien
  • 4 chambres
  • Stationnement, box
  • Extérieur
  • Terrasse
Type de chauffage :
individuel
* Provision avec régularisation annuelle, location sans honoraires de location, hors stationnement
Diagnostic de performance énergétique
Energie(kWh/m²/an)
42
B
GES(CO2/m²/an)
8
B
Ce bien vous intéresse ?Nous contacter
N'hésitez pas à nous consulter pour vérifier les conditions d'éligibilité (conditions de ressources)
Description
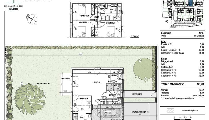
À louer : Villa T5 Duplex avec jardin – Résidence Les Maisons du Barri – Daux – Garage et Parking
Bailleur : Toulouse Métropole Habitat
Disponible à partir du : 13 août 2025

Un logement lumineux, fonctionnel et familial
Découvrez cette charmante villa T5 en duplex, située au cœur de la résidence récente Les Maisons du Barri, cette villa mitoyenne de plain-pied de 111,30 m² vous offre un cadre de vie agréable, idéal pour une famille en quête d'espace, de confort et de tranquillité.

Avec ses volumes bien agencés, sa pièce de vie traversante et ses espaces extérieurs, cette maison mitoyenne est idéale pour une famille en recherche de calme et de confort.

La villa comprend :
Une vaste pièce de vie traversante avec cuisine ouverte de 39,33 m²
Quatre chambres lumineuses dont une en rez-de-chaussée (entre 10 m² et 13,38 m²)
Une salle de bain avec baignoire
Une salle d'eau avec douche
Deux WC séparés
De nombreux rangements
Une terrasse de 13,83 m²
Un grand jardin privatif
Un Garage
Une place de stationnement extérieure

Loyer & Charges
Loyer mensuel : 1 299,87 €

Charges : 45,87 €

Total mensuel : 1 345,74 €

Dépôt de garantie : 1 299,87 €

Caractéristiques
Récente – résidence livrée en 2024
Idéale pour familles avec enfants
Non accessible fauteuil roulant
Chauffage individuel
Financement : LLI
DPE : B
GES : B

Avantages
Terrasse et grand jardin privatif

4 vraies chambres + pièce de vie spacieuse

Garage attenant

Quartier résidentiel calme

Résidence récente, cadre agréable

Zone APL 2 – Éligible aux aides au logement

PAS DE FRAIS D'AGENCE

Localisation & Environnement
La résidence Les Maisons du Barri se situe dans un quartier résidentiel proche du centre ville de Daux, à proximité des écoles, des commerces de proximité et des accès vers Toulouse et Airbus. Un environnement paisible pour une vie de famille sereine.

Contact & Candidature
Ce logement est géré par Toulouse Métropole Habitat. Pour toute candidature ou demande d'information complémentaire, merci de nous écrire. Un lien pour créer votre dossier vous sera ensuite transmis.
Commodités
Retour à la liste