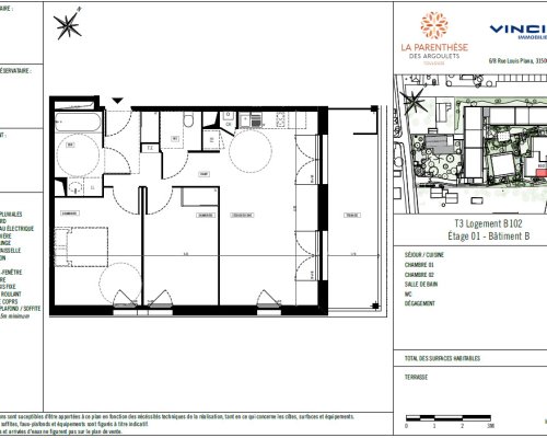
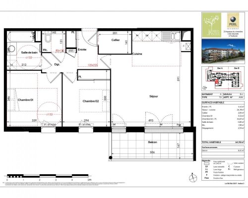
Appartement 3 pièces 62.86 m²
Ce bien vous intéresse ?Nous contacter
637 €
par mois
charges comprises*
Ref. 01020458050303
- TOULOUSE / Saint-Agne
- 62.86 m²
- 3 pièces
- Ancien
Disponible immédiatement
Caractéristiques du bien
- 3ème etage
- Ascenseur
- Stationnement à proximité
Type de chauffage :
collectif
Dépôt de garantie :
637 €
* Provision avec régularisation annuelle, location sans honoraires de location, hors stationnement
Ce bien vous intéresse ?Nous contacter
?>
N'hésitez pas à nous consulter pour vérifier les conditions d'éligibilité (conditions de ressources)
Copropriété :
Logement dans la copropriété : 73
Description
A louer, Appartement de 3 pièces de 62m2 avec ascenseur, dans un résidence récente proche des commerces, transports et services.Conditions : Logement soumis aux plafonds PLS. Etre inscrit sur demandedelogement31.
Commodités






