Appartement 3 pièces 80 m²
Ce bien vous intéresse ?Nous contacter
904 €
par mois
charges comprises*
Ref. 010684010010
- Seilh
- 80 m²
- 3 pièces
- Ancien
Caractéristiques du bien
- 2 chambres
- 1er etage
Dépôt de garantie :
836 €
* Provision avec régularisation annuelle, location sans honoraires de location, hors stationnement
Diagnostic de performance énergétique
63
C
12
C
Ce bien vous intéresse ?Nous contacter
VÉRIFIEZ VOTRE ÉLIGIBILITÉ !
AVANT DE NOUS CONTACTER :
- Assurez-vous d'avoir fait votre demande départementale de logement social et d'avoir un numéro unique.
- Vérifiez à quel type de logement (PLAI, PLUS, PLS, LLI) vous êtes éligible en comparant vos revenus aux plafonds de ressources.
Pour vous donner un ordre d'idée :
- Pour un logement PLS, les revenus totaux de votre foyer doivent représenter environ 3 fois le montant du loyer.
- Pour un logement PLUS, ils doivent correspondre à environ 2 fois le loyer.
- Les logements PLAI s'adressent aux foyers aux ressources les plus modestes.
- Les logements étudiants sont destinés aux étudiants et aux jeunes actifs.

N'hésitez pas à nous consulter pour vérifier les conditions d'éligibilité (conditions de ressources)
Description
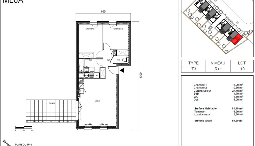
Découvrez ce agréable T3 de 61,10 m², situé au 1er étage de la résidence VILLA VERDE à Seilh. Ce logement lumineux offre une belle pièce de vie avec cuisine/séjour de 27,40 m², deux chambres confortables, une salle de bains, un WC séparé ainsi qu'une grande terrasse de 15,90 m² et un local annexe de 3,60 m².Le logement comprend :
Une entrée / dégagement
Un séjour avec cuisine ouverte de 27,40 m²
Deux chambres de 11,90 m² et 10,30 m²
Une salle de bains de 4,70 m²
Un WC séparé de 1,60 m²
Une terrasse de 15,90 m²
Un local annexe de 3,60 m²
Loyer & Charges :
Loyer mensuel : 836,03 €
Charges mensuelles : 68,89 €
Total mensuel : 904,92 €
Dépôt de garantie : 836,03 €
Caractéristiques :
Type 3 pièces
1er étage, sans ascenseur
Logement simple
Hors QPV
Zone APL 2
Aide au logement possible
Accessibilité senior : aucune
Les + :
Résidence récente
Belle surface extérieure avec terrasse
Pièce de vie spacieuse et lumineuse
Deux chambres bien réparties
Local annexe pratique pour le rangement
Cadre résidentiel à Seilh
Localisation & Environnement
Située à Seilh, cette villa profite d'un environnement résidentiel calme et qualitatif, dans une opération pensée pour le confort de ses occupants et la durabilité du bâti. Proximité de toutes les commodités.
Contact & Candidature
Pour toute demande d'information complémentaire ou pour déposer votre candidature, merci de nous écrire. Un lien pour constituer votre dossier vous sera transmis ensuite.
Logement Intermédiaire soumis à plafonds de ressources.
Commodités


