Voir plus de critères
Je veux

Appartement 3 pièces 63.95 m²

Ce bien vous intéresse ?Nous contacter
809 €
par mois
charges comprises*
Ref. 56786345678
  • Toulouse / La Fourguette
  • 63.95 m²
  • 3 pièces
  • Neuf
Caractéristiques du bien
  • 2 chambres
  • Stationnement, box
  • Terrasse
Type de chauffage :
individuel
* Provision avec régularisation annuelle, location sans honoraires de location, hors stationnement
Ce bien vous intéresse ?Nous contacter

VÉRIFIEZ VOTRE ÉLIGIBILITÉ !
AVANT DE NOUS CONTACTER :

  • Assurez-vous d'avoir fait votre demande départementale de logement social et d'avoir un numéro unique.
  • Vérifiez à quel type de logement (PLAI, PLUS, PLS, LLI) vous êtes éligible en comparant vos revenus aux plafonds de ressources.
    Pour vous donner un ordre d'idée : 
    - Pour un logement PLS, les revenus totaux de votre foyer doivent représenter environ 3 fois le montant du loyer.
    - Pour un logement PLUS, ils doivent correspondre à environ 2 fois le loyer.

    Les logements PLAI s'adressent aux foyers aux ressources les plus modestes
    - Les logements étudiants sont destinés aux étudiants et aux jeunes actifs.

      VÉRIFIER MON ÉLIGIBILITÉ

 

N'hésitez pas à nous consulter pour vérifier les conditions d'éligibilité (conditions de ressources)
Description
À louer : T3 neuf – Le 160 – Plusieurs T3 à tous les étages – Disponible immédiatement – Parking inclus

Adresse : rue Mathieu Berdoulat, 31100 Toulouse.

Bailleur : Toulouse Métropole Habitat.

Livraison / Disponible : logements disponibles à partir du 26 janvier 2026

Un logement sain, confortable et adapté au quotidien

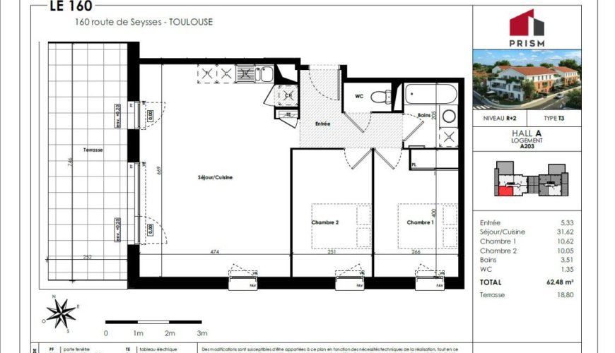
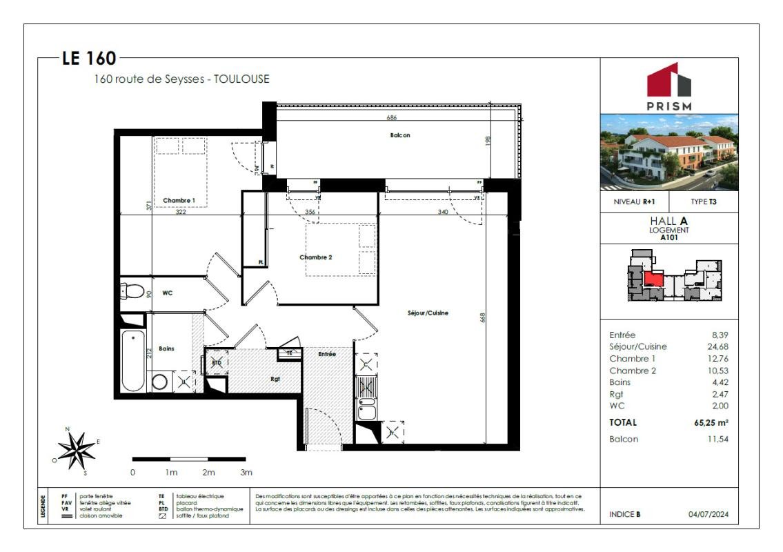
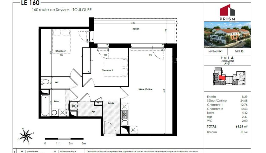
Intégrez la nouvelle résidence Le 160 : des appartements T3 neufs, pensés pour offrir confort et fonctionnalité. Plusieurs T3 seront proposés à tous les étages - idéal pour couples ou familles souhaitant s'installer rapidement à Toulouse. (Plan et surfaces détaillées disponibles sur demandes).

LE LOGEMENT

Type : T3 (2 chambres) — Surface habitable : de 59.81 m² jusqu'à 70.86 m²

Étage : Du rez-de-chaussée au 2ième étages

Agencement fonctionnel : séjour, cuisine, 2 chambres, salle de bains, WC.

Parking inclus.

LOYER & CHARGES

Loyer mensuel : 735.37€ jusqu'à 764.36€

Charges mensuelles : 73.76 €

Total mensuel (loyer + charges) : 809.13€ jusqu'à 850.10 €

Dépôt de garantie : un mois de loyer Hors Charges

CARACTÉRISTIQUES

Neuf – première location .

Ascenseur : Oui — Accessibilité fauteuil roulant : Oui.

Zone APL 2 – éligible aux aides logement.

DPE / GES : en cours.

AVANTAGES

Logements neufs dans une résidence contemporaine et bien située.

Plusieurs T3 disponibles à tous les étages — opportunité de choix selon exposition et étage.

Parking inclus et conception optimisée pour la vie de tous les jours.

PAS DE FRAIS D'AGENCE.

LOCALISATION & ENVIRONNEMENT

Résidence Le 160, située rue Mathieu Berdoulat — accès facile aux commerces, services et transports vers Toulouse. Livraison fin janvier : idéal pour emménager début d'année.

CONTACT & CANDIDATURE

Logements gérés par Toulouse Métropole Habitat. Pour candidater ou demander des informations complémentaires (plans détaillés par lot, photos supplémentaire, orientation, type de chauffage), écrivez nous : nous vous enverrons le lien pour déposer votre dossier de candidature.
Commodités
Retour à la liste